【富山市山室】デザイン × 性能 新感覚平屋住宅売ります!|OLIVER建築設計

【富山市山室】デザイン × 性能 新感覚平屋住宅売ります!

日程詳細1/3(土)~ 1/4(日)
時間10:00-18:00 (完全予約制)
場所富山市山室303
オリバー建築設計|デザイン住宅|新築|富山市-高岡市-射水市-滑川市|家は、家族との時を刻む場所。お気に入りの空間に、自分らしさをつめこんで、家族と、仲間と、自分の時間もたくさん楽しもう。オリバーは「暮らしを楽しむこと」をコーディネートする富山の会社です。 />
【富山市山室】平屋モデルハウス 家具付き限定1棟お譲りします!

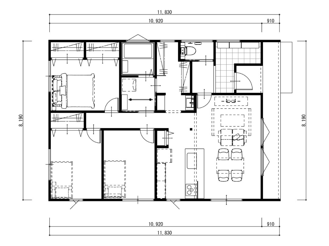
回遊動線・ライフスタイルに合わせた平屋 駐車3台以上可3LDK


【山室小エリア】自由で快適な暮らしを叶える、未来に続く家
・設備はモデルハウス仕様で10年の設備保証付き
・天井埋込Bluetoothスピーカー込み・オール電化住宅(エコキュート)・エアコン2台(LDK/洋室)・食洗器付き・ソファ・ダイニングテーブル・テレビボード付き・駐車スペース3台分

■保証
瑕疵保証20年/地盤保証20年/シロアリ保証10年/住宅設備保証10年
支払い例
◯借入金額 3,630万円 ◯金利 0.51 ◯借入期間 40年の場合
月々 83,616
土地建物販売金額
3,630万円(税込)
■土地/227.40㎡(68.78坪) ■建物/ 87.36㎡(26.42坪)

このモデルハウスの見どころ

  1. オリバー建築設計|デザイン住宅|新築|富山市-高岡市-射水市-滑川市|家は、家族との時を刻む場所。お気に入りの空間に、自分らしさをつめこんで、家族と、仲間と、自分の時間もたくさん楽しもう。オリバーは「暮らしを楽しむこと」をコーディネートする富山の会社です。

    Point.1

    光あふれる16.6帖のLDK シンプルに映える上質空間

    明るい16.6帖のLDKは、上品なグレージュでコーディネート。一面だけ濃いグレーのアクセントを効かせて、洗練された大人の空間に仕上げました。
    南東向きの明るいリビングには、東と南に大きな開口部を設けており、たっぷりと自然光が差し込みます。
    特に東側には縦横2つずつ、計4つの窓を配置。日中は照明いらずで、やさしい光が心地よく室内を包み込みます。

  2. オリバー建築設計|デザイン住宅|新築|富山市-高岡市-射水市-滑川市|家は、家族との時を刻む場所。お気に入りの空間に、自分らしさをつめこんで、家族と、仲間と、自分の時間もたくさん楽しもう。オリバーは「暮らしを楽しむこと」をコーディネートする富山の会社です。

    Point.2

    落ち着いた色味で心地よく過ごせるキッチン

    おしゃれで使いやすい、ペニンシュラタイプのキッチンを採用。
    リビング側には収納を設け、空間をすっきりと見せる工夫も。
    グレージュで統一された上品なキッチンは、日々の料理時間を心地よく、そして少し特別にしてくれます。

  3. オリバー建築設計|デザイン住宅|新築|富山市-高岡市-射水市-滑川市|家は、家族との時を刻む場所。お気に入りの空間に、自分らしさをつめこんで、家族と、仲間と、自分の時間もたくさん楽しもう。オリバーは「暮らしを楽しむこと」をコーディネートする富山の会社です。

    Point.3

    ファミクロ・洗面脱衣室・浴室が一直線に!家事ラク動線。

    洗面の向かいにはオープン棚を設け、タオルやバスタオルもすっきり収納できます。
    大容量のファミリークロークは、季節物の整理にもぴったり。各部屋に分散せずにまとめて収納できるので、おうち全体がすっきりと整います。
    洗濯後はそのまま収納まで完結できるスムーズな動線で、毎日の家事がぐっと快適に。

【富山市山室】デザイン × 性能 新感覚平屋住宅売ります!
○幼稚園・保育園 / やまむろこども園:760m(徒歩10分)○小学校 / 山室小学校:1230m(徒歩16分)○中学校 / 山室中学校:510m(徒歩7分)○コンビニ・スーパー / ローソン富山山室中央店:480m(徒歩6分)/ クスリのアオキ山室店:480m(徒歩6分)/ バロー本郷店:560m(徒歩7分)/ グリーンモール山室:1040m(徒歩13分)○駅 / 地鉄バス停山室:460m(徒歩6分)/ 地鉄大泉駅:1440m(徒歩18分)

周辺環境

ローソン富山山室中央店まで480m

ローソン富山山室中央店まで480m

クスリのアオキ山室店まで480m

クスリのアオキ山室店まで480m

バロー本郷店まで560m

バロー本郷店まで560m

グリーンモール山室まで1040m

グリーンモール山室まで1040m

ユニクロ山室店まで90m

ユニクロ山室店まで90m

外観・間取り

オリバー建築設計|デザイン住宅|新築|富山市-高岡市-射水市-滑川市|家は、家族との時を刻む場所。お気に入りの空間に、自分らしさをつめこんで、家族と、仲間と、自分の時間もたくさん楽しもう。オリバーは「暮らしを楽しむこと」をコーディネートする富山の会社です。

外観デザイン

こだわりの素材が調和する、洗練されたシンプルデザインの外観。
一面は柔らかな風合いの塗壁、他の三面はスタイリッシュなガルバリウムで仕上げ、異なる素材を組み合わせることで、個性と上質さを両立。 屋根付きのポーチは、自転車置き場としてはもちろん、ガーデニングやちょっとしたくつろぎスペースにもぴったり。 大きな窓から降り注ぐ光が、LDK全体を明るく心地よい空間にしてくれます。

間取り

延床面積
87.36 ㎡(26.42坪)
床面積
1F / 87.36 ㎡(26.42坪) 2F / --

【富山市山室】デザイン × 性能 新感覚平屋住宅売ります!

玄関:広々とした土間が広がるお洒落な空間。シューズクロークから入る家族玄関があり、大柄の物や自転車など置ける。
ダイニングキッチン:キッチン前カウンターには、質感を高めてイメージをぐっと変えてくれる石張りシートを採用
動線:室内はキッチンを中心に家中のどこへでもアクセスできる間取りで、掃除や家事の負担を減らしてくれる家事ラク動線。

来場予約キャンペーンでQUOカード1万円分もらえる

お問い合わせはお電話でも

0120-555-401

受付時間 / 9:00-18:00
定休日: 火曜日・水曜日

【富山市山室】デザイン × 性能 新感覚平屋住宅売ります!

日程詳細1/3(土)~ 1/4(日)
時間10:00-18:00 (完全予約制)
場所富山市山室303
備考
今だけ、来場予約+アンケートでQUO カード合計10,000円分プレゼント中!
来場予約でQUOカード3,000円、来場前アンケート2,000円、
さらに、来場後アンケート5,000円 合計10,000円のQUOカードプレゼント!
お一家族様につき、1回限りとさせていただきます。
予約会場に実際にお越しいただいた方にお渡しさせていただきます。
入場無料。新型コロナウイルス感染拡大を鑑み、完全予約制にて開催いたします。
※お1組様2時間のご案内に限らせて頂きます。
※不特定多数の方と接触する状況はございません。
見学会開催期間以外はご予約にて内覧できます。
ご希望の方はFP相談、家づくりや土地探しのご相談も承ります。

現在の予約状況 (2026年01月23日現在)

※2時間の内覧時間を設けさせていただいております。

2026年01月03日(土)
10:00~ 12:00~ 14:00~ 16:00~
予約済 予約済 予約済 予約済
2026年01月04日(日)
10:00~ 12:00~ 14:00~ 16:00~
予約済 予約済 予約済 予約済

ご来場予約


≪注意事項≫
・ご来場前/後アンケートへの回答をご協力いただいております。
・未成年のみでのご来場はお控えください。
・QUOカードのお渡しは下記条件になります。
 (1) OLIVER建築設計に初めてご来場いただいたお住まいをお考えの方。(過去にOLIVER建築設計にご来社された方、モデルハウス・内覧会にお越しになられた方は対象外とさせていただきます)
 (2) 来場前/来場後WEBアンケートの回答にご協力いただける方。
 (3) OLIVER建築設計の各種SNSの友だち登録をしていただける方。
※QUOカードお渡しの際に、身分証明書のご提示にご協力いただく可能性がございます。予めご了承くださいませ。
※QUOカードのお渡しは一世帯一回限りとさせていただきます。

※ご相談窓口から確認のご連絡をさせていただきます。
※なるべく早いご連絡を心がけておりますが、お問い合わせ内容や休日により、数日お時間を頂くことがございます。
※お急ぎの場合は、誠に恐縮ですがお電話:0120-555-401(9:00 ~ 18:00)までご連絡ください。

ドメイン指定受信のお願い

oliver-architect.jp のドメイン指定受信の設定をお願い致します。
お申込みいただいたお客様には、自動で受付確認メールを送信しております。受付確認メールを受信されていないお客様は、携帯電話の受信設定により弊社からのメールを受信拒否している恐れがございますので、ご確認ください。