【中新川郡立山町】人気平屋モデルハウス完成見学会ーHIRATASUー

| 日程詳細 | 2/21(土)~ 2/23(月) |
|---|---|
| 時間 | 10:00-18:00 (完全予約制) |
| 場所 | 立山町五郎丸235番16 |
#富山市 完成見学会 #富山市 家 #新築 #一戸建て #住宅 #平屋 #ゼロキューブ #マイホーム #モデルハウス
concept
自由で快適な暮らしを叶える、未来に続く家
HIRATASUは生活スタイルに合わせてお部屋をプラスできる平屋住宅です。
住まいに必要な機能を+(プラス)出来るのは、部屋に留まらずガレージや階層の追加も可能。
横にタス、上にタス生涯に渡り住生活の可変に対応する家づくりを実現します。
デザインだけではなく、「断熱等級 5(ZEH基準)」・「C値(相当隙間面積) 0.5以下」と当たり前の性能は当然クリア。
一人暮らしからご家族世帯まで幅広い世代をカバーし、長く快適に暮らす構想までを配慮したサスティナブル設計です。
このモデルハウスの見どころ
-

Point.1
景色と暮らしがつながる家
大きなピクチャーウィンドウの先に広がる、立山連峰。
晴れた日には、澄んだ青空と雄大な山並みが、まるで一枚の絵のように室内へと入り込みます。
室内は一転して、落ち着きのあるトーンで統一。
素材や色味を抑えることで、立山の景色そのものが主役になる空間に仕上げました。
リビングからつながるインナーテラスは、時間を忘れて過ごせる特別な場所。
朝のコーヒー、午後の読書、夕暮れの静かなひととき——
日常の中に、自然と“余白”が生まれます。 -

Point.2
落ち着いた色味で心地よく過ごせるキッチン
おしゃれで使いやすい、ペニンシュラタイプのキッチンを採用。
冷蔵庫を壁で隠したり、リビング側には収納を設けたり、生活感をなくしてスッキリと見せる工夫も。
グレージュで統一された上品なキッチンは、日々の料理時間を心地よく、そして少し特別にしてくれます。 -

Point.3
ファミクロ・洗面脱衣室・浴室が一直線に!家事ラク動線。
洗面の向かいにはオープン棚を設け、タオルやバスタオルもすっきり収納できます。
大容量のファミリークロークは、季節物の整理にもぴったり。各部屋に分散せずにまとめて収納できるので、おうち全体がすっきりと整います。
洗濯後はそのまま収納まで完結できるスムーズな動線で、毎日の家事がぐっと快適に。
外観・間取り
外観デザイン
外観は、白を基調にやさしい木目を添えた、どこか“可愛らしさ”を感じる佇まい。
街並みにすっと馴染みながらも、ふと目を引く存在感。
一面は柔らかな風合いの塗壁、他の三面はスタイリッシュなガルバリウムで仕上げ、異なる素材を組み合わせることで、個性と上質さを両立。
屋根付きのポーチは、自転車置き場としてはもちろん、ガーデニングやちょっとしたくつろぎスペースにもぴったり。
大きな窓から降り注ぐ光が、LDK全体を明るく心地よい空間にしてくれます。
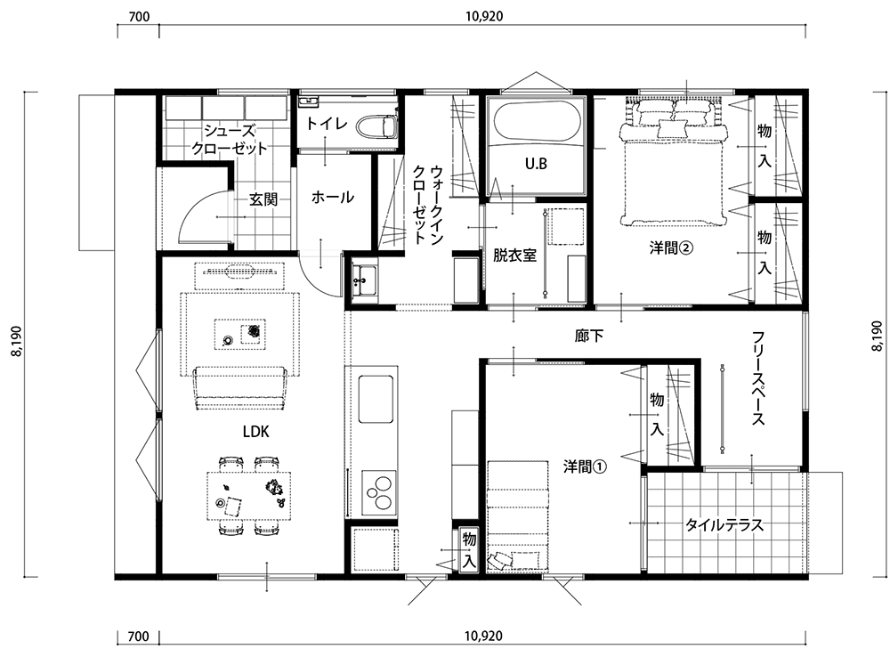
間取り
- 延床面積
- 82.62㎡(24.99坪)
- 床面積
- 1F / 82.62㎡(24.99坪) 2F / --


【中新川郡立山町】人気平屋モデルハウス完成見学会ーHIRATASUー
| 日程詳細 | 2/21(土)~ 2/23(月) |
|---|---|
| 時間 | 10:00-18:00 (完全予約制) |
| 場所 | 立山町五郎丸235番16 |
| 備考 |
今だけ、来場予約+アンケートでQUO カード合計10,000円分プレゼント中!
入場無料。新型コロナウイルス感染拡大を鑑み、完全予約制にて開催いたします。来場予約でQUOカード3,000円、来場前アンケート2,000円、 さらに、来場後アンケート5,000円 合計10,000円のQUOカードプレゼント! お一家族様につき、1回限りとさせていただきます。 予約会場に実際にお越しいただいた方にお渡しさせていただきます。 ※お1組様2時間のご案内に限らせて頂きます。 ※不特定多数の方と接触する状況はございません。 見学会開催期間以外はご予約にて内覧できます。 ご希望の方はFP相談、家づくりや土地探しのご相談も承ります。 |
ご来場予約






